PUERTAS EN LAMINADO
DESCRIPCIÓN TÉCNICA
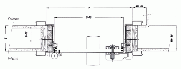
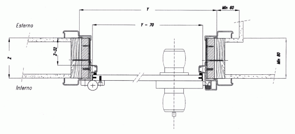
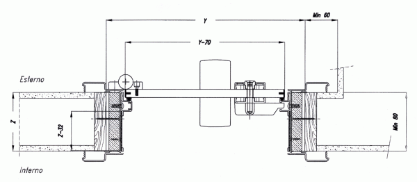
Marco perimetral En perfil de aluminio anodizado plateado o negro que presupone, la existencia de un contramarco de madera.
Paradas en perfil de aluminio anodizado plateado o negro con amortiguador y elemento de sellado en neopreno negro.
Puerta en laminado sólido de 14 mm de espesor (HPL), autoextinguible Clase 1 con certificado.
Bisagras en aluminio con dispositivo de resorte interno para cierre automático / apertura automática: el dispositivo tampoco se puede activar.
Cerradura de la puerta Tipo de presión / apertura con dispositivos libres / ocupados o, alternativamente, con un bloqueo totalmente de nylon con perno giratorio, manija y dispositivo libre / ocupado; ideal para usar en cabinas de ducha porque es insensible a la corrosión y depósitos de cal.
Elementos de fijación En acero galvanizado o, previa solicitud, en acero inoxidable.






Serie K

Puertas con marco perimetral en aluminio anodizado; puerta laminada laminada maciza mm. 14 con tres bisagras en aluminio anodizado.
Puertas para habitaciones o cabinas de inodoros (excepto cabinas de ducha) con cerradura tipo Meroni que proporciona: dispositivo de cierre solo en el lado interno; dispositivo de apertura de seguridad operable desde el exterior; Indicador de libre / ocupado.






Cod. S104 Mod KI / P - Apertura hacia el interior



Serie T
Puertas sin marco perimetral, con perfil de aluminio extruido simple para ser fijado a la pared, que realiza las funciones de soporte de las bisagras y acabado en el lado opuesto; puerta laminada laminada maciza mm. 14 con bisagras elásticas de acero inoxidable.


OPCIONES

Ojo de buey simple

Doble semi ojo de buey

Presionar / abrir bloqueo Mod. "Forma"

Gancho

SOLICITE INFORMACION






