CABINAS GIRATORIAS
CAMBIO DE HABITACIONES
Los vestuarios se dividen en dos tipos distintos:
- los vestuarios rotativos
- los vestuarios montados en la pared
Los primeros se utilizan típicamente exclusivamente en los vestuarios de las instalaciones de natación donde realizan algunas funciones precisas que se ilustran en detalle en el siguiente párrafo de este catálogo.
Estos últimos constituyen una tipología altamente articulada, indispensable siempre que surja la necesidad de que los usuarios del vestuario se cambien para usar ropa deportiva o de trabajo específica.
Los vestuarios rotativos son un tipo con características precisas con dimensiones estándar aceptadas en todas partes, mientras que las cabinas montadas en la pared pueden tener tamaños, formas y alturas variables que se definen en relación con las necesidades específicas caso por caso (consulte la segunda parte de este catálogo) .









S 691
Conexión superior en tubo de acero inoxidable de 0 mm. 25 y clips en aluminio anodizado
S 597
Marca grabada en la puerta
S 693
Pie de apoyo ajustable en acero inoxidable.
S 85 - SALAS DE CAMBIO DE ROTACIÓN
Las cabinas giratorias se utilizan en los vestuarios de las instalaciones de natación donde se requiere una separación estricta entre el camino con los pies calzados y el camino descalzo.
Esta separación clara se obtiene a través, de las cabinas giratorias que, por lo tanto, tienen dos funciones: como un vestidor real, dentro del cual el usuario cambia de la condición con los pies calzados, a la de los pies descalzos y viceversa; como elemento separador, entre dos áreas obtenidas a través de un juego adecuado de filas de cabañas y particiones;
DESCRIPCIÓN TÉCNICA
Estructura de soporte en acero inoxidable; Soportes de acero inoxidable con patas ajustables de acero inoxidable y nylon.
Paredes laminadas macizas 10 mm de espesor.
Puertas en laminado macizo 1O mm de espesor; Bloqueo o desbloqueo simultáneo de las dos puertas, mediante un elemento giratorio de acero inoxidable.
Conexión superior en perfil de aluminio anodizado.

S851 CRN
Cabinas con doble puerta y banco
Dimensiones estándar:
base: cm.
Altura total 120 × 90 : cm. 200 sobre la
Altura de la puerta: cm. 150
Nota: cada fila de divisiones requiere un elemento de encabezado.
S 855TCPN
Unidad principal para fijar a la pared
Dimensiones estándar:
base: cm. 120 × 12718
S 853TCN
Unidad principal
Dimensiones estándar:
base: cm. 120 × 18743
S 857 HRN
Cabinas para discapacitados con cuatro puertas con bisagras de resorte y banco interno.
Dimensiones estándar:
base: cm. 120 × 155 aprox.

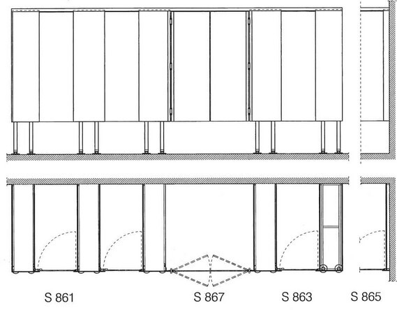
S 86 - GABINETES DE CAMBIO DE PARED
Los vestuarios montados en la pared, son idénticos a las cabinas giratorias, pero están equipados con una sola puerta y un dispositivo especial, para fijarlos a la mampostería. Cada fila de gabinetes tiene un elemento de cabeza.
DESCRIPCIÓN TÉCNICA
Estructura de soporte en acero inoxidable; Elementos de soporte en tubo de acero inoxidable de diámetro 45 × 2 mm con pies de nylon ajustables.
Paredes y puertas realizadas con paneles laminados sólidos laminados de 10 mm de espesor.
El dispositivo de cierre de la puerta funciona con palanca, posiblemente con un indicador de libre / ocupado.
Conexión superior por perfil de aluminio anodizado.
Banco interno en laminado sólido, con acabado de aluminio anodizado.
Las cabinas para discapacitados, están equipadas con puertas batientes, con bisagras elásticas especiales, de acero inoxidable.

S861 VAN
Cabinas con puerta simple y banco.
Dimensiones estándar:
base: cm.
Altura total 120 × 90 : cm. 200 sobre la altura de la puerta: 150 cm
Nota: cada fila de cabañas requiere un elemento de encabezado.
S863TRN
Unidad principal
Dimensiones estándar:
base: cm. 120 × 18 + 43
altura total: Cerca de 200 cm
S 865 PT / PN
Unidad principal para fijar a la pared.
Dimensiones estándar:
base: cm. 120 × 12 + 18
altura total: Cerca de 200 cm
S867 HVN
Cabinas para discapacitados con dos puertas con bisagras de resorte y banco interno.
Dimensiones estándar:
base: cm. 120 × 155
altura total: Cerca de 200 cm
