BARRERAS Y CONTROL DE ACCESO
La reducción de los costos de funcionamiento en instalaciones deportivas, es ahora uno de los principales objetivos de los diseñadores.
Desde este punto de vista, el control de los accesos y las líneas de barreras para dirigir el flujo de usuarios son de considerable importancia y en la práctica son los elementos condicionantes de muchas opciones de distribución.
Además, estas estructuras están sometidas a una tensión continua, por lo que la robustez de estos elementos combinada con la simplicidad, de la construcción, para reducir las intervenciones de mantenimiento, es esencial.
Patentverwag ha desarrollado una línea de barreras y control de acceso diseñada, para satisfacer las diversas necesidades de diseñadores y gerentes con el fin de adaptar, su producción a las demandas del mercado, en constante cambio. En particular, al diseñar la amplia gama de elementos involucrados, en esta línea de productos, los siguientes requisitos se han tomado como fundamentales:
Robustez Solo se han proporcionado materiales de acero inoxidable, de alta calidad en espesores altos (2 mm) y policarbonato, un material plástico altamente resistente.
Acero inoxidable Todos los detalles, incluso los relacionados con las partes mecánicas internas, están hechos de materiales inoxidables o protegidos contra la oxidación, un requisito fundamental en las instalaciones deportivas e indispensable en las instalaciones de natación.
Modularidad Encontrar la solución correcta para cualquier problema que pueda surgir, tanto en la fase de diseño, como en el caso de intervenciones en plantas existentes.
Barreras modulares, barreras de púas. La tecnología de soldadura y doblado del tubo de acero inoxidable es muy costosa, requiere equipos complejos y procesos largos, que a menudo se pueden llevar a cabo, exclusivamente a mano.
Con el fin de reducir el costo muy alto de las barreras de tubo curvadas y soldadas, se ha estudiado una alternativa basada, en juntas de policarbonato moldeadas, que permiten el montaje de cualquier tipo de barrera.
La línea de barrera de Patentverwag tiene tres categorías distintas:

Barreras modulares
Hechas de elementos de tubo recto y juntas de policarbonato.

Barreras de tubería curvadas y soldadas
Compuestas de tuberías dobladas y soldadas.

Se pueden hacer barreras especiales personalizadas con barreras especiales en tubo curvo de acero inoxidable, incluso de gran complejidad estructural.
MATERIALES USADOS
Barreras modulares Tubo de acero inoxidable AISI 304, Ø45 mm., Pulido espejo; juntas moldeadas en policarbonato negro, conexiones a tierra en policarbonato o acero inoxidable.
Barreras
soldadas y curvas
Tubo de acero inoxidable AISI 304 (Ø45mm.) Espejo pulido; curvas cerradas dobladas en frío, soldaduras pulidas con tubo fresado y soldado; Conexiones a tierra en acero inoxidable.
Control de acceso
En tubo de acero inoxidable AISI 304, varios diámetros, engranajes de acero chapado en cadmio, acero inoxidable o acabados de PVC.
ACCESORIOS Y REPUESTOS
Base de fijación al suelo P1243 para S914.
Pie de policarbonato moldeado S627 para S915.
Grupo S9151 de cuatro tornillos autorroscantes de acero inoxidable y cuatro tapones de nylon para fijar los montantes S913 y S915.
S9161 junta curva en policarbonato moldeado
Junta S9181 para conexiones en "T" o en estrella en policarbonato.
BARRERAS
S 911 Tubo de acero inoxidable AISI 304 Ø externo mm.45. Utilizado para barreras modulares y curvas.
S 912 Procesamiento relacionado con cada sección del tubo de barrera modular que incluye corte para torneado y taladrado para bloquear las juntas de policarbonato.
S 913 Vertical en tubo de acero inoxidable (Ø45 cm,) altura 115 cm base circular, Ø11 cm, espesor 3mm con cuatro agujeros para fijar al suelo.
Esta posición vertical se recomienda para barreras en sistemas que ya funcionan.
Ampliar dibujo técnico
Esta posición vertical se recomienda para barreras en sistemas que ya funcionan.
Ampliar dibujo técnico
De hecho, la fijación al suelo se obtiene simplemente mediante tapones de expansión y tornillos autorroscantes.
La resistencia de la barrera a los esfuerzos inducidos por los usuarios es proporcional al sellado del piso.
Por lo tanto, donde se esperan grandes tensiones, es aconsejable utilizar el código vertical S914.
La resistencia de la barrera a los esfuerzos inducidos por los usuarios es proporcional al sellado del piso.
Por lo tanto, donde se esperan grandes tensiones, es aconsejable utilizar el código vertical S914.
S 914 El acero inoxidable vertical (Ø45 mm), altura 115 cm, con brida de base rectangular de dos orificios, debe instalarse en el piso de la base especial de acero inoxidable tipo P1243 para su instalación.
Ampliar dibujo técnico
La barrera tiene una resistencia muy alta al estrés y ofrece las más amplias garantías de seguridad: parapetos, barandillas, barandillas, etc.
S 915 Vertical en tubo de acero inoxidable (Ø45 mm), altura 115 cm, con brida de policarbonato moldeado, con cuatro agujeros.
Para ser instalado, requiere tornillos y tapones de expansión.
Ampliar dibujo técnico
Para ser instalado, requiere tornillos y tapones de expansión.
Ampliar dibujo técnico
Este tipo de posición vertical determina una barrera elástica y resistente: adecuada donde no se esperan grandes tensiones.

S 916 Junta curva de expansión en policarbonato para conectar dos piezas de tubería.
S 917 Doblado del tubo en una curva cerrada.

S 918 Flexión de expansión en policarbonato para conexiones en "T" de secciones de tubería.
S 919 Conexión en "T" de dos tubos con soldadura continua y rectificada.
CONTROL DE ACCESO

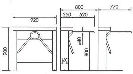
S 921 Mod. PASS / 2C Sistema de control de acceso en acero cromado que consta de: elemento giratorio central con cuatro vigas, poste de guía de personas y dispositivo antipánico. Completo con accesorios para la instalación.
Dirección de rotación a configurar durante el montaje. Reversible.

S 922 Mod. PASS / 2X Sistema de control de acceso de acero inoxidable que consta de: elemento giratorio central con cuatro vigas, poste de guía de personas y dispositivo antipánico. Completo con accesorios para la instalación.
Dirección de rotación a configurar durante el montaje. Reversible.
PASS / 2C y PASS / 2X Mod

S 923 Mod. PASS / 3C Sistema de control de acceso con tres brazos montados en un elemento giratorio. Estructura en chapa cromada y pintada; Movimiento mecánico unidireccional con sistema antipánico.
Dirección de rotación reversible o bloqueable con llave.
Las dimensiones transversales limitadas del modelo PASS / 3C favorecen la creación de múltiples aberturas, incluso en un espacio limitado para una gestión eficaz del tráfico. Los materiales utilizados lo hacen muy resistente, a la manipulación y al vandalismo. Las esquinas y esquinas son redondeadas, la tapa está equipada con una cerradura con llave. El interior de la cubierta, está diseñado para alojar el equipo de control electrónico. Los hombros están equipados con puertas, que solo se pueden quitar, cuando la cubierta está abierta, lo que facilita las operaciones de instalación. El mecanismo, su lógica de control y el equipo instalado dentro de la cubierta, son fácilmente accesibles.
Descripción técnica
Cubierta y hombros: chapa electro-galvanizada, color gris metalizado con recubrimiento en polvo y recubierto con una capa de poliuretano transparente
Caja: chapa electro-galvanizada, con recubrimiento en polvo
Espaciador: acero inoxidable AISI 304 pulido ,
Puertas de bayoneta:Acero inoxidable AISI 304 satinado Cabezal de trípode: con recubrimiento en polvo recubierto con una capa de poliuretano transparente
Brazo del trípode: acero inoxidable AISI 304 pulido Dimensiones del embalaje: 100X92X40 (cm) -
Mecanismo de 50 Kg
Disponible en 7 configuraciones funcionales: mecánico unidireccional - electromecánico unidireccional - electromecánico unidireccional normalmente abierto - electromecánico bidireccional no selectivo - salida libre electromecánica bidireccional / entrada controlada - electromecánico bidireccional selectivo estándar - ahorro de energía electromecánico bidireccional selectivo.
Accesorios bajo pedido
Contador mecánico / electromecánico - liberación automática por falla de energía - dispositivo de brazos antipánico - indicadores de dirección.

S 925 Mod. PASS / 3CE Sistema de control de acceso con tres brazos montados en un elemento giratorio. Estructura en chapa cromada y pintada; Movimiento electromecánico con sistema antipánico.
Dirección de rotación reversible o bloqueable con llave.
S925 Mod. PASS / 4C
PASS / 4C diseñado para encajar armoniosamente en un sistema modular de barreras, también está hecho en la versión de doble hoja que permite la gestión de grandes aberturas.
Operación PASS / 4C es un pasaje bidireccional capaz de aceptar señales en ambas direcciones, que abre la hoja en la dirección seleccionada. La señal recibida de un lector de tarjetas u otro dispositivo, activa el motor. La hoja gira 90 ° a una velocidad preestablecida, a menos que encuentre un obstáculo. En este caso, el motor se desactiva y se activa una alarma acústica. Eliminado el obstáculo, la rotación se completa automáticamente. Cuando la puerta está abierta, PASS / 4C espera a que el usuario transite por un tiempo preestablecido, después de lo cual la cierra y puede aceptar la señal de una fotocélula, que detecta el paso del usuario, cerrando primero el paso que el tiempo de espera ha expirado. Está equipado con un dispositivo antipánico: si empuja la puerta con una fuerza superior a 8N, la misma rueda mientras activa la alarma acústica,luego regresa automáticamente la hoja a la posición de funcionamiento normal.
Características principales
Fuente de alimentación: 24 V CC - Motor: 24 V CC; 18W (4.5Nm)- Relación de reducción: 62: 1 Antipánico: fuerza de liberación> 8N
Carrocería Acero: tratado, con recubrimiento en polvo, color gris metálico y protegido. Acero inoxidable: disponible en satinado AISI 304. Peso: 35 Kg
Electrónica La electrónica de control gestiona completamente las funciones de la máquina: apertura y cierre bidireccional de la hoja con control del interruptor de límite y posiciones intermedias. Procedimiento de seguridad con tope de puerta y reapertura en caso de impacto. Activación de la señal de alarma en caso de apertura forzada de la hoja y en caso de activación del procedimiento de seguridad. Posibilidad de control del tránsito, a través del sensor y consecuente cierre anticipado de la puerta.
Accesorios bajo pedido
Barreras de protección lateral de la máquina y barreras de canalización. Comando de apertura mono / bidireccional a través de fotocélula. Fotocélula de control de tránsito. Dispositivo anti-escalada. Fuente de alimentación de mesa con panel de control. Soporte para alojar otros dispositivos de control. Plataforma en aluminio anodizado.
S 926 Mod. PASS / 3XE
Sistema de control de acceso con tres brazos montados en un elemento giratorio. Estructura de acero inoxidable con movimiento electromecánico con dispositivo antipánico.
Dirección de rotación reversible o bloqueable con llave.
S 927 Mod. PASS / 3 COMP.
Sistema de control de acceso con tres brazos montados en un elemento giratorio. Estructura en chapa cromada y pintada movimiento mecánico unidireccional con sistema antipánico.
Dirección de rotación a configurar durante el montaje reversible.
No hay posibilidad de bloquear la rotación.







